LET SUBJECT TO CONTRACT
**Utility bills included** Available July 2026**
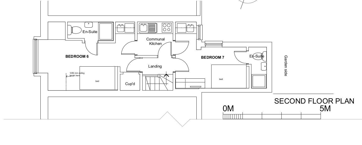
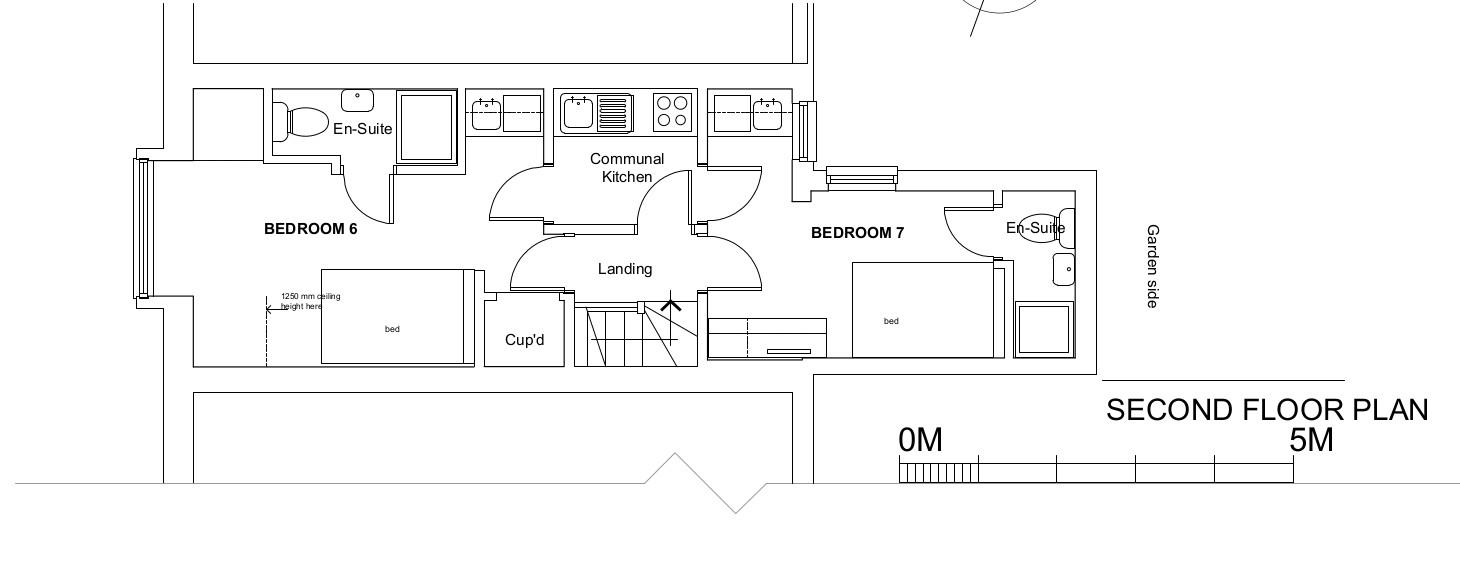
Student property in Selly Oak, just a short walk from UoB. This property comes fully furnished with a double bed, study desk and chair, flat-screen TV, a quality low noise fridge, and more. Tenants can enjoy a modern snack area and a fitted self-contained shower room. A larger kitchen is provided with an oven, hob and washer dryer. Other benefits include high-speed 100Mb broadband, a bath or shower room and utility bills being included in the rent.
The communal areas of this property, including the stairs and landing, will be cleaned by our staff. We also have a dedicated maintenance team for any repairs or faults, which means you can expect fast repairs.
Ideally located in Selly Oak, you'll find a good range of supermarkets, shops, restaurants, pubs, and takeaways nearby. The student village is also well served by public transport, including a train station which can take you to the city centre.
Ref: 52A2R
Register interest or sign up for our newsletters.








