LET SUBJECT TO CONTRACT
Students Only - £128 per Person per Week - Available 15/07/22
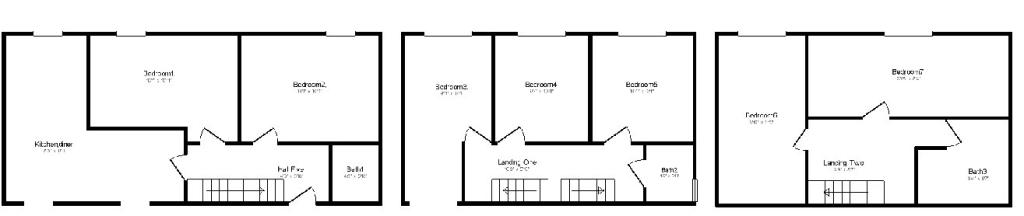
A shared house in Selly Oak, within walking distance of the University of Birmingham. With 6 double bedrooms, 3 bath or shower rooms, and an open-plan kitchen/living area, this accommodation is ideal for a group of students looking to share a property during the next academic year. Fully furnished with all the essentials, including double beds, storage, washing machine and more.
Utility bills and high-speed 100Mb broadband are included in the rent. We have a dedicated maintenance team who can provide quick response times. The student village of Selly Oak is a great location for tenants studying at the university, with plenty of local amenities. You'll find a selection of supermarkets, shops, pubs, takeaways and more nearby. Selly Oak is also well served by public transport, including a local train station and several bus routes.
Book your viewing today to avoid disappointment.
Register interest or sign up for our newsletters.













